The Ambition
The Ambition
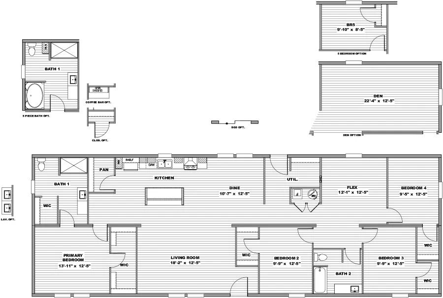
This beautifully designed manufactured home offers the perfect blend of functionality, comfort, and style—ideal for growing families or anyone who loves extra space. With 4 bedrooms, 2 full bathrooms, and over 2,000 square feet of living space, this layout provides plenty of room to live, work, and entertain.Enjoy a large private bedroom with a walk-in closet and an en-suite bath that can be upgraded to a luxurious 5-piece spa-style bathroom.The heart of the home features a spacious kitchen with a center island, large pantry, and adjacent dining area. It’s perfect for family meals and entertaining guests.In addition to the large living room, this floor plan includes a flex room and optional upgrades for a fifth bedroom, den, or home office, giving you the freedom to design your space to suit your lifestyle.A dedicated utility room with washer/dryer connections is conveniently located off the kitchen and near the rear entry.Optional features include a coffee bar, 5-bedroom configuration, and a spacious den, offering additional flexibility and comfort.
Floorplan
Ready to get started?
Reach Out To Us To Learn More About This Home














